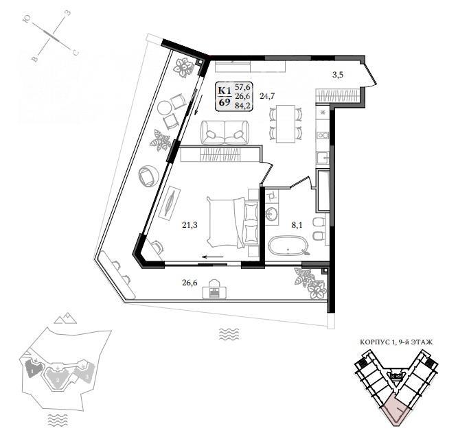
- общая площадь - 84,6 кв.м.
- спальня - 21,3 кв.м.
- кухня-гостиная - 24,7 кв.м.
- балконов - 1
- спален - 1
- санузлов - 2
- этаж/этажность - 4/15
Характеристики Недвижимости
- Спа
- Парковка
- Консьерж сервис
- Вид на море и горы
- Закрытая территория
- Детская площадка
- тренажерный зал
- Бассейн.
- Игровая комната
- Панорамный ресторан
- Бизнес-зал
Описание
Продажа 1-комнатных апартаментов с видом на море в комплексе «LETTO» на берегу Черного моря, в курортном поселке Утес, по соседству с дворцом княгини Гагариной.
Площадь – 84,6 кв.м. (включая балкон 26,6 кв.м.), расположены на 4 этаже башни «Июнь».
Планировка: прихожая 3,5 кв.м., кухня-гостиная 24,7 кв.м., спальня 21,3 кв.м., сан.узел 8,1 кв.м., балкон 26,6 кв.м.
О ПРОЕКТЕ
Три башни – «Июнь», «Июль» и «Август» на 413 апартаментов открывают перед вами захватывающие панорамы южного побережья, живописной набережной и окрестностей уютного поселка Утес. Каждый номер с открытой террасой создаст атмосферу спокойствия и наслаждения пейзажами природы.
В комплексе представлена широкая линейка планировочных решений от студий до двухуровневых пентхаусов на последних этажах. Объект обладает 100% видовыми характеристиками, а панорамные раздвижные окна позволяют любоваться пейзажами, не вставая с кровати.
Площади апартаментов – от 29,7 до 212,4 кв.м.
Высота потолков – 3,1 метра.
Открытая парковка на 85 мест.
ИНФРАСТРУКТУРА
— Круглогодичный СПА-ЦЕНТР с бассейном, джакузи и парными, с подобранными программами массажей и косметическими процедурами.
— Взрослый и детский БАССЕЙНЫ под открытым небом с местами для отдыха и видом на Черное море.
— АВТОРСКИЙ РЕСТОРАН С ПАНОРАМНОЙ ТЕРРАСОЙ, который удивит вас не только своим меню, но и впечатляющим видом.
— ТРЕНАЖЕРНЫЙ ЗАЛ с современными тренажерами и СПОРТИВНАЯ ПЛОЩАДКА на свежем воздухе.
— БИЗНЕС-ЗАЛ для проведения деловых встреч и переговоров.
— ДЕТСКАЯ ПЛОЩАДКА с безопасным покрытием и ИГРОВАЯ КОМНАТА для развивающих занятий и мастер-классов.
— БЛАГОУСТРОЕННАЯ ПАРКОВАЯ ЗОНА с ландшафтным дизайном, беседками и прогулочными аллеями для неспешных прогулок и чтения книг.
БЕЗОПАСНОСТЬ
Закрытая территория с видеонаблюдением, контрольно-пропускным пунктом и службой безопасности. Вход осуществляется по индивидуальным электронным ключам.
СЕРВИС
Собственная сервисная компания решит любые вопросы, связанные с проживанием и отдыхом. Организация различных мероприятий, эксклюзивные туристические возможности, заказ столика в ресторане, бронирование авиабилетов и подготовка апартаментов к вашему приезду, а также сдача в аренду.
УСЛОВИЯ ПРИОБРЕТЕНИЯ
— 100 % оплата
— ипотека
— беспроцентная рассрочка
Реализация проекта по ФЗ-214 (эскроу-счета).
Ввод в эксплуатацию – 2027 г.
Приобретайте апартаменты на старте продаж по лучшим ценам и пусть это лето будет вашим!















