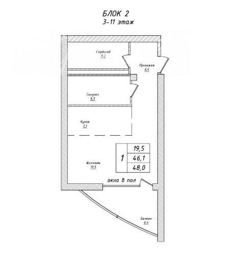
- общая площадь - 48 кв.м.
- жилая - 19,5 кв.м.
- кухня - 7,1 кв.м.
- комнат - 1
- спален - 1
- санузлов - 1
- этаж/этажность - 11/16
Характеристики Недвижимости
- Закрытая территория
- Охрана
- Детская площадка
- Развитая инфраструктура
- Близость к морю
- Предчистовая отделка
- Центр
- Вид на море
Описание
Продажа просторной студии в ЖК «Галерея» в центре Алушты с видом на море.
Общая площадь – 48 кв.м., расположена на 11м этаже 16-этажного корпуса.
Планировка:
— прихожая 6,4 кв.м.;
— сан.узел 6,9 кв.м.;
— зона кухни 7,1 кв.м.;
— гардеробная 6,2 кв.м.;
— зона отдыха 19,5 кв.м.;
— лоджия – 6,4 кв.м.
Из окон вид на море.
Отделка в квартире – white box.
Коммуникации: городское водоснабжение, городское электроснабжение, собственная резервная электроподстанция, высокоскоростной интернет, горячее водоснабжение от собственной котельной, генераторы для обеспечения работы лифтов в случае перебоев.
Продажа осуществляется по ДДУ (ФЗ-214).
Закрытая территория комплекса «Галерея» оснащена собственной комфортной инфраструктурой для жильцов:
– закрытая от посторонних придомовая территория;
– трёхуровневый паркинг, оборудованный лифтом;
– детская и спортивная площадки;
– зоны отдыха и прогулок;
– озеленение и архитектурные инсталляции, украшающие двор;
– магазины и кафе на территории
Сдача в эксплуатацию – второй квартал 2025 г.





























