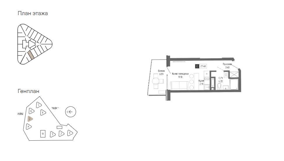
- общая площадь - 27,48 кв.м
- жилая - 11,1 кв.м
- кухня - 2,19 кв.м
- комнат -1
- спален -
- санузлов -1
- этаж/этажность -3/20
Характеристики Недвижимости
- асфальтированный подъезд
- Бассейн.
- Близость к морю
- Детская площадка
- Закрытая территория
- Консьерж сервис
- Новый дом
- Охрана
- Под отделку
- Предчистовая отделка
- Развитая инфраструктура
- Ресторан
- Сдача в аренду
- Терраса
- тренажерный зал
Описание
Апартаменты бизнес-класса в комплексе « Крымская Резиденция» в самом сердце курортного города Алушты. Это идеальное место для отдыха и жизни.
Мелкогалечные плажи Профессорского уголка находятся всего в 10 минутах ходьбы от комплекса.
Апарт-комплекс включает в себя 10 корпусов и обустроенную территорию с развитой инфраструктурой. В каждом корпусе 2 скоростных лифта. Предчистовая отделка (white box). Панорамное остекление. Высота потолков 2,85 м.
Апартаменты- студия площадью 27,48 кв.м., на 3м этаже 20-этажного здания, с видом на променад, в корпусе «Бунин» (ввод в эксплуатацию IV квартал 2026г.). Вид с балкона на внутренний двор и горы.
На территории «Крымской Резиденции» расположены:
— Взрослые и детские бассейны, общей площадью 1000 кв.м.
— СПА и фитнес-центр
— Рестораны и кафе
— Разновозрастные детские площадки и детский центр
— Приватные лаундж зоны и зоны барбекю
— Круглосуточный консьерж-сервис
— Собственный ТРЦ
— Вся инфраструктура города в шаговой доступности
Уютное курортное окружение, близость к набережной и ключевым достопримечательностям делают локацию идеальной для отдыха, жизни и инвестиций.
• 100% оплата на эскроу-счет ФЗ- 214;
• Рассрочка от застройщика до ввода в эксплуатацию, первоначальный взнос от 10% , с ежемесячными платежами от 50 000 руб.;
• Ипотека.









