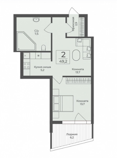
- общая площадь - 49,2 кв.м
- жилая - 27,4 кв.м
- кухня - 5,2 кв.м
- комнат - 2
- спален - 1
- санузлов - 1
- этаж/этажность - 3/8
Характеристики Недвижимости
- Консьерж сервис
- Новый дом
- Вид на море и горы
- Набережная
- Закрытая территория
- Детская площадка
- тренажерный зал
- Бассейн.
- Близость к морю
- Под отделку
- Ресторан
Описание
2-комнатный апартамент в апарт-отеле Форос.
Площадь — 49,2 кв.м. Расположен на 3-м этаже.
Лоджия — 6,2 кв.м.
Апарт-отель Форос строится в самой южной точке Крыма.
Горный воздух здесь кристально чист, напоен хвоей и морской свежестью. А вдоль всего побережья Фороса растянулись необыкновенно чистые галечные пляжи.
Из апартаментов открываются захватывающие виды на морские бухты, знаменитую Форосскую церковь, горные вершины и реликтовый лес.







