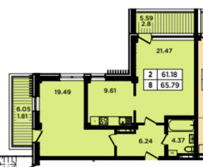
- общая площадь - 65,79 кв.м
- жилая - 40,96 кв.м
- кухня - 9,61 кв.м
- комнат - 2
- спален - 2
- санузлов - 1
- этаж/этажность - 2/8
Характеристики Недвижимости
- Зона барбекю
- Консьерж сервис
- Новый дом
- Набережная
- Парк
- Закрытая территория
- Детская площадка
- тренажерный зал
- Терраса
- выгодное предложение
- Бассейн.
- Близость к морю
- С отделкой
- Ресторан
Описание
2-комнатный апартамент в готовом комплексе More.Yalta.
Площадь — 65,79 кв.м. Расположен на 2-м этаже.
В апартаменте выполнена чистовая отделка.
Комплекс апартаментов More.Yalta находится в живописном месте Южного побережья Крыма — поселке Гурзуф.
More.Yalta — это идеальное сочетание нетронутой красоты природы, возможностей для восстановления сил и заряда эмоций с лучшим сервисом.







