
ЖК «ЖК АЛЕА»
Короткие сведения по объекту
Преимущества | ![]() Специалист объектаВалентина Володько+7 978 081-69-58 |
Жилой комплекс бизнес класса “Alea” расположен в одном из крупных городов Южного берега Крыма, в самом сердце Алушты, в районе Профессорского уголка.
Проект камерный, с закрытой охраняемой территорией, с ландшафтным дизайном, архитектурной подсветкой и зонами отдыха. Номерной фонд в 270 квартир на 3 корпуса. На этаже расположено всего 9 квартир, что обеспечивает полный комфорт собственникам.
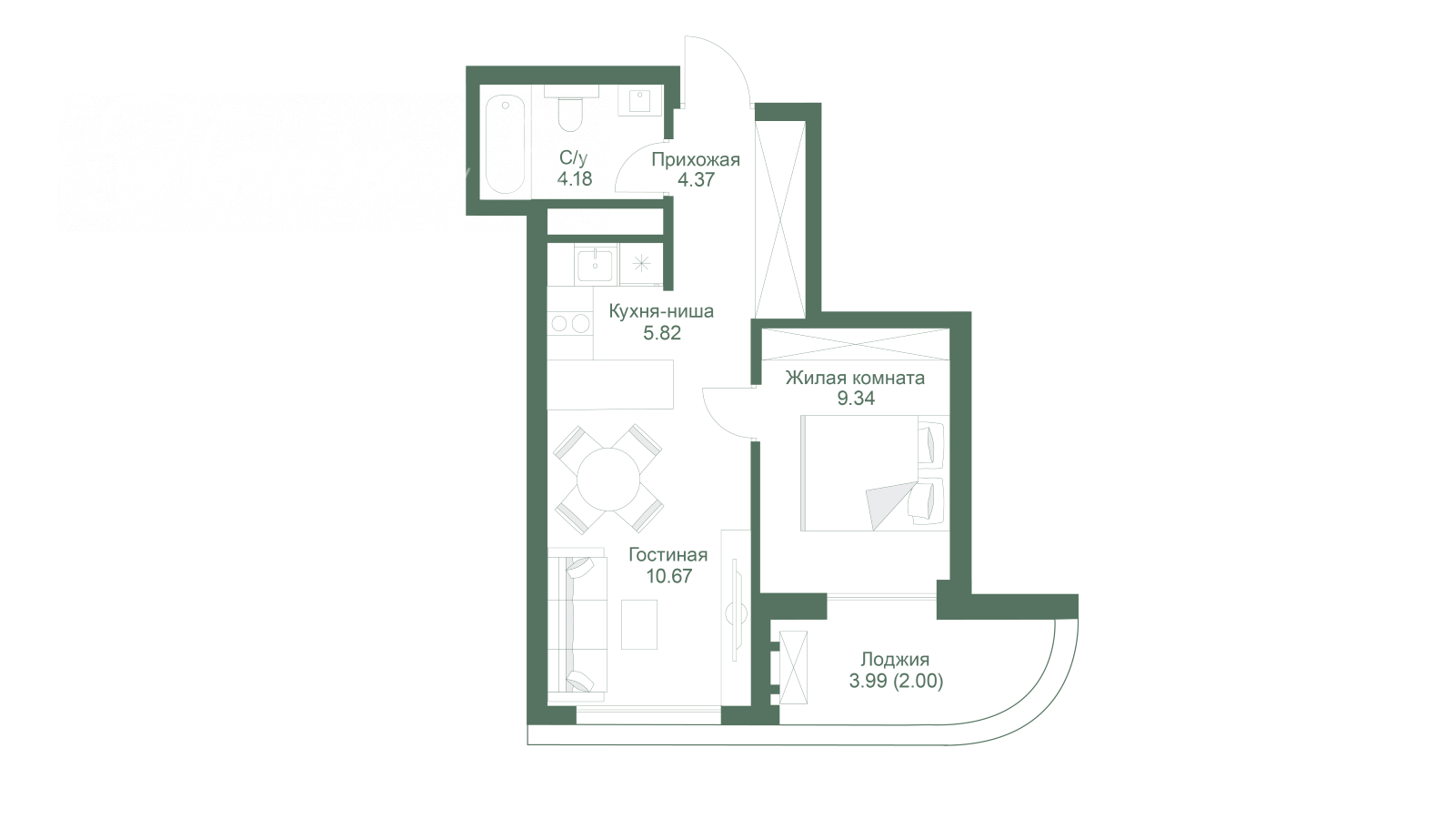
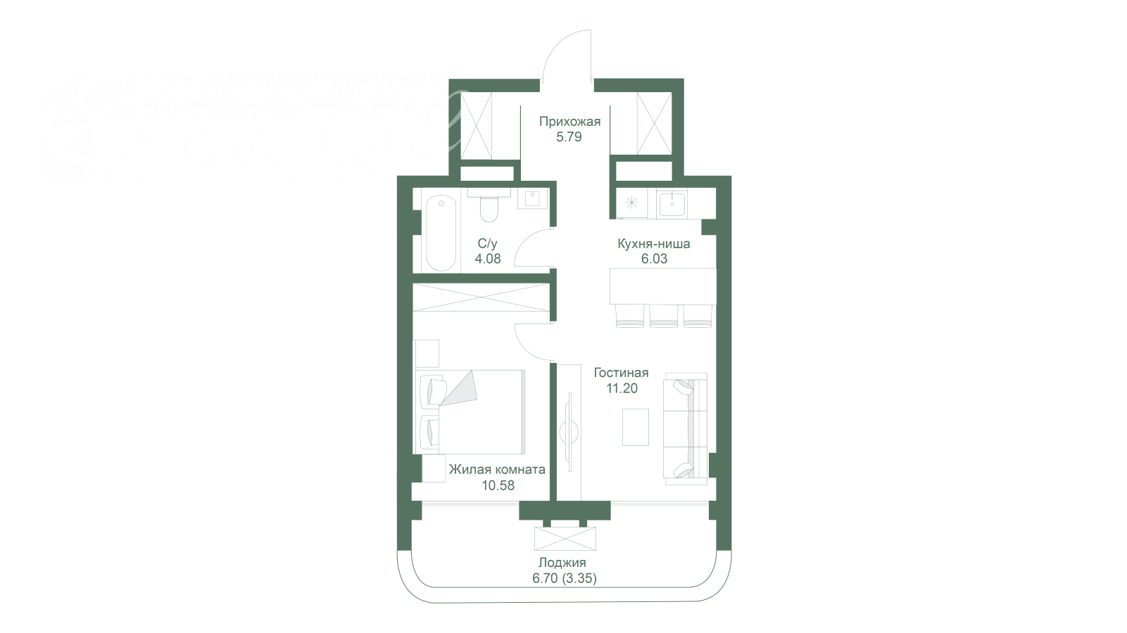
Площадь квартир от 32 кв.м. с возможностью объединения. Квартиры с отдельной спальней. Панорамное остекление. Высота потолков 3 м. Квартиры сдаются в черновой отделке. Лучшие виды на море, горы и город.
Инфраструктура ЖК Алеа:
— Бассейн от УК
— Ресторанный комплекс
— Спортивная площадка
— Детская площадка
— Торговая галерея на 1х этажах комплекса (Кофейня, Винный бутик, мини маркет, аптека)
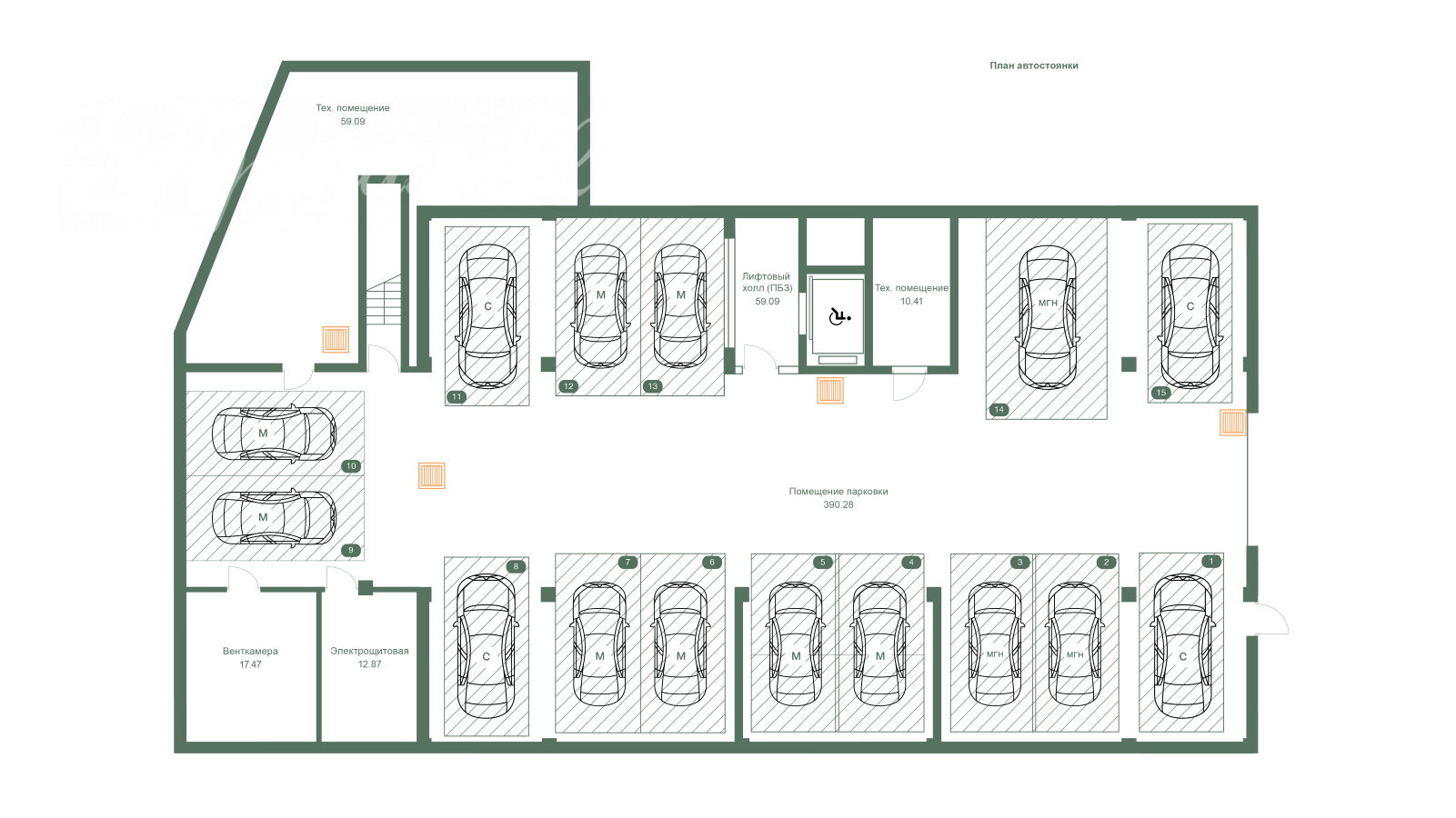
— Подземная парковка на 45 машиномест + парковочные стилобаты на территории
Локация проекта:
— ул. Сергеева-Ценского
— 650 м. до моря
— 15 минут пешего маршрута до набережной и береговой линии
— 10 минут на машине до центральной набережной г.Алушты
— 5 минуты на машине до набережной профессорского уголка
Уютное курортное окружение, близость к набережной и ключевым достопримечательностям делают локацию идеальной для отдыха, жизни и инвестиций. Комплекс расположен вблизи всей необходимой городской инфраструктуры.
- 100% оплата на эскроу-счет ФЗ- 214, при поддержке СБЕРбанка;
- Рассрочка от застройщика до ввода в эксплуатацию, первоначальный взнос от 30%;
- Субсидированные ипотеки;
- Материнский капитал.
Ваша квартира в центре курортной жизни Крыма!
Сдача в эксплуатацию — 3 кв. 2026 года!
Застройщик – ООО «СЗ «ВЕСТ-АКЦЕНТ-СТРОЙ»

